Циклон ЦБ 49 в Каскелене

ЦБ 49 циклон
Циклон ЦБ-49
Чертеж циклона ЦБ-49
Циклон ЦБ-49 чертеж
Циклоны батарейные ЦБ 49
Батарейные циклоны ЦБ-49
ЦБ 49 циклон для очистки воздуха от пыли
Циклон ЦБ-49 для очистки воздуха от пыли
Отверстия выхлопных труб ЦБ 49 циклона
Отверстия выхлопных труб циклона ЦБ-49
Циклон ЦБ 49 производство
Производство циклонов ЦБ-49
Циклоны ЦБ 49 завод изготовитель
Завод изготовитель циклонов ЦБ-49
ЦБ 49 циклон
Чертеж циклона ЦБ-49
Циклоны батарейные ЦБ 49
ЦБ 49 циклон для очистки воздуха от пыли
Отверстия выхлопных труб ЦБ 49 циклона
Циклон ЦБ 49 производство
Циклоны ЦБ 49 завод изготовитель
Цена
8 830 600 ₸
От 8 830 600 ₸ с доставкой до г.
Логотип WhatsApp Связаться
по WhatsApp
Циклон ЦБ 49 предназначен для очистки запылённых газов или воздуха от твёрдых частиц неслипающейся пыли или золы с размерами частиц более 5 мкм.

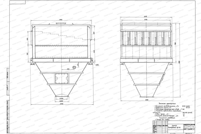
Технические характеристики

Тип циклонаБатарейный, Циклон ЦБ
Количество элементов49 шт
Внутренний диаметр циклонного элемента245 мм
Степень очистки газов80 %
Допустимая температура газов на входе до300 °С
Запыленность входных газов600 г/м³
Габаритные размеры: длина*ширина*высота3280*2705*2300 мм
Масса3113 кг
ПрименяемостьКотел ДКВр-10-13; КЕ-10-14С

Промышленный циклон ЦБ 49 в Каскелене

Циклоны ЦБ 49 осуществляют очистку запылённой газовоздушной среды от твёрдых неслипающихся частиц пыли или золы размером более 5 мкм. Циклоны ЦБ 49 также применяют для улавливания различных зол на тепловых электростанциях и в промышленных котельных, угольной пыли в сушильных установках обогатительных и брикетных фабрик и системах промышленной вентиляции, а так же неслипающейся пыли в различных отраслях промышленности.

Наиболее широко циклон ЦБ 49 применяется с котлами ДКВр-10-13; КЕ-10-14С.

Конструкция циклона ЦБ 49

Циклон ЦБ 49 пылеуловитель состоит из корпуса и циклонных элементов расположенных параллельными рядами внутри корпуса. Циклонный элемент имеет полуулиточный ввод газа, где полуулитка направляет загрязненный газ в циклон, придавая ему вращательное движение.

Условно циклон ЦБ 49 делится на камеры очищенного и загрязненного воздуха и бункер в котором собирается пыль.

Циклонный элемент ЦБ 49 представляет полый цилиндрический корпус. Нижняя часть корпуса изготовлена в виде конуса, в верхней части расположен спиралевидный входной патрубок, направляющий поток газа по необходимой траектории. Внутри элементов вертикально установлены выхлопные патрубки, служащие для отвода очищенного воздуха. Циклонные элементы устанавливаются ступенями по ходу движения газов, входные патрубки последующего ряда располагаются ниже предыдущего. На верхней крышке устанавливается взрывной клапан.

Батарейный циклон ЦБ 49 поставляется единым блоком.

Принцип работы циклона ЦБ 49

Циклон ЦБ 49 устанавливается только на одну котельную установку, за котлом, перед дымососом. Запыленные дымовые газы поступают во входное окно пылеуловителя и распределяются по входным патрубкам циклонных элементов. Сепарация частиц золы производится под действием гравитационных и центробежных сил, далее частицы осаждаются в бункере-накопителе. Периодически зола из бункера удаляется при помощи шибера. Очищенный газ отводится из циклона через выходное окно.

Особенностью циклона ЦБ 49 является то, что он не имеет отключаемых секций, газовый поток проходит через все циклонные элементы блока, не разделяясь. Поэтому аппарат не имеет регулировки по производительности, в зависимости от нагрузки котла.

Купить циклон ЦБ 49

Для того, что бы купить циклон ЦБ 49 в Каскелене вы можете сделать заявку по телефону +7-7172-69-59-73, либо оформить заявку онлайн. Менеджеры дадут консультацию по подбору вспомогательного оборудования для выбранных вами моделей и рассчитают стоимость доставки. Транспортирование котлоагрегата и вспомогательного оборудования до объекта осуществляется автомобильным транспортом.

Дополнительно потребуется

Нет фото
Цена по запросу
Транспортер шлакоудаления
Цена 7 578 500 тг.

Похожая продукция

Золоуловитель ЗУ 0.4
Цена 289 960 тг.
Циклон батарейный БЦ 2
Цена 10 247 450 тг.
Циклон батарейный БЦ 259
Цена по запросу
ЦБ циклон
Цена 6 260 500 тг.
Циклон ЦН 15 500 2СП
Цена 856 700 тг.

Сертификаты товара

Сертификат на золоуловители (циклоны)
Сертификат на золоуловители (циклоны)

Опросные листы

Все опросные листы
Опросный лист на циклоны
Заполнить опрос
Опросный лист на опоры циклона
Заполнить опрос

Собственное производство

Котельный завод производит
  • Паровые котлы от 300 кг до 2.5 тонны пара в час
  • Промышленные водогрейные котлы от 150 КВт до 4 МВт на всех видах топлива
  • Механические топки ТШПМ, шурующая планка и ТЛПХ, ленточное полотно прямого хода
  • Циклоны для очистки воздуха и дымовых газов для производств и промышленных отраслей
  • Транспортеры и системы топливоподачи и шлакоудаления
Подробнее о производстве
Собственное производство
Смотреть видео
с производства